READY-BUILD HOUSE INFO. 建売情報

スマイルホーム平塚A-8号

R8年3月完成予定
所在地 都城市平塚町3086-8
価格 2,580万円(税込)
毎月支払額 67,020円~

(金利1.145%/40年返済の場合)

ボーナス払い -万円

(金利1.145%/40年返済の場合)

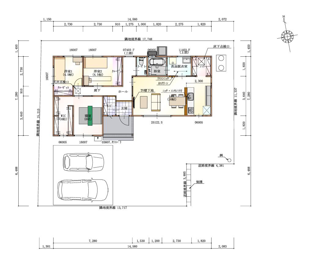
FLOOR PLAN 間取図

MAP 所在地マップ

Instagramインスタグラム